München
Lerchenauer Straße
Wettbewerbsbetreuung / Bebauungsplan / Beratergremium
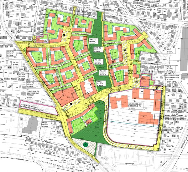
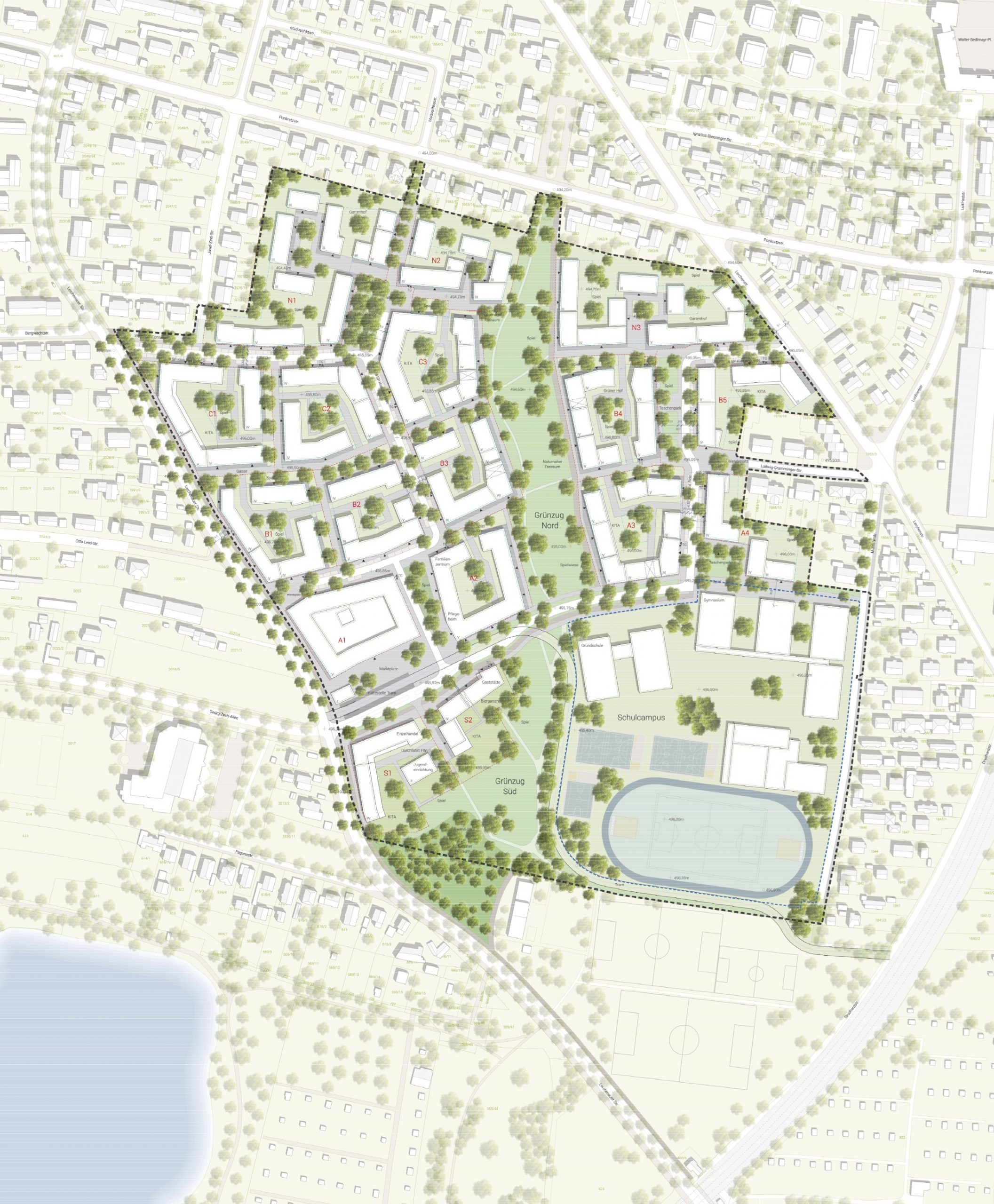
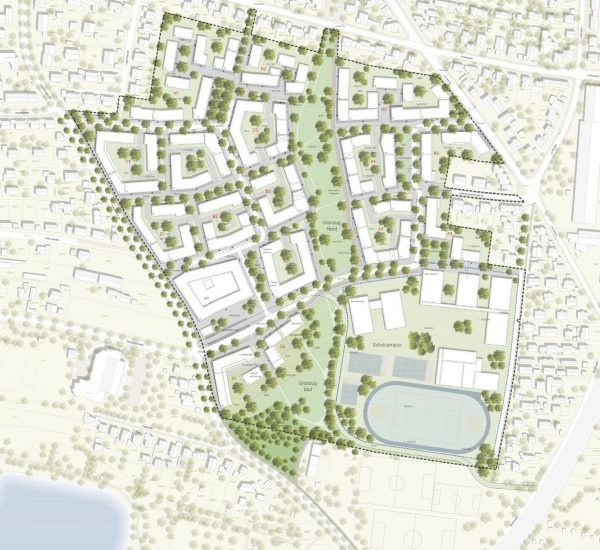
Im Stadtteil Feldmoching entsteht ein urbanes, verdichtetes Stadtquartier mit Geschosswohnungs-bauten und den zugehörigen Infrastruktureinrichtungen. Im südwestlichen Bereich des Planungsgebiets ist am „Marktplatz“ ein Quartierszentrum vorgesehen mit Einkaufsmöglichkeiten, Gewerbe und sozialen Infrastruktureinrichtungen. Südöstlich schließt der neue Bildungscampus an, dessen Außensportflächen im Süden an die bestehenden Sportanlagen anbinden. Nördlich und nordöstlich des Marktplatzes entwickeln sich beiderseits eines Nord-Süd-Grünzugs Blockrandbebauungen im eher kleinstädtischen Maßstab mit moderater Höherentwicklung um geschützte Wohnhöfe herum. Diese werden im Übergang zur bestehenden Wohnbebauung im Norden kleinteiliger und niedriger. Das Planungskonzept ermögliclht neben einer moderaten städtebaulichen Entwicklung die Umsetzung der „Modellstadt 2030“ der Inzellinitiative sowie ein ambitioniertes Mobilitätskonzept mit einem Anteil von max. 20 % motorisierten Individualverkehrs (MIV). Darüber hinaus wurde ein innovatives, lokales, weitgehend regeneratives Energiekonzept in Zusammenarbeit mit der Stadtwerke München GmbH erarbeitet und die Voraussetzungen zum Ausbau der Trambahn sowie des Radwegenetzes initiiert.
Nach der Teilnahme am Wettbewerb und dem erreichten 3. Preis erhielten wir den Auftrag, auf Basis des 1. Preises sowie einer Volumenstudie für den Schulcampus das Bebauungsplanverfahren zu betreuen.
Leistung bgsm
– Wettbewerbsteilnahme (2020, 3. Preis)
– Bebauungsplan (2020 -22)
Auftraggeberin
Wohn Park Lerchenauer Feld GmbH & Co. KG

