Erlangen
Siemens Campus
Wettbewerbsbetreuung / Bebauungsplan / Beratergremium
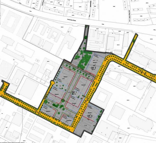
Siemens errichtet auf seinem weltweit größten Standort einen offenen, modernen und nachhaltig gestalteten Campus. Aufbauend auf einem in einem Wettbewerbsverfahren gekürten städtebaulichen und landschaftsplanerischen Masterplan soll das ca. 54 ha große Planungsgebiet abschnittsweise in Modulen mit Größen von ca. 6-10 ha entwickelt. Der Masterplan bildet dabei die Grundlage für die Bauleitplanung. Die einzelnen Bebauungspläne (Module) sichern das städtebauliche und landschaftsplanerische Entwurfskonzept und regeln die gewünschten Nutzungen. Dabei wird der ruhende Verkehr in zentralen Parkhäusern organisiert, um eine möglichst hohe Freiflächenqualität im Gebiet zu erhalten. Ein wesentliches Element des Masterplans ist daher die Grünachse, die sich über mehrere Module erstreckt. Sie erfährt im Westen an der S-Bahn-Station Paul-Gossen-Straße ihren Auftakt und stellt die wesentliche Durchwegung für Fußgänger und Radfahrer von West nach Ost über den gesamten Campus bis zum Naturschutzgebiet der Brucker Lache dar.
Aufgrund der großen Zeitspannen zwischen den Realisierungen werden die Planungen immer wieder an den aktuellen strukturellen und betrieblichen Bedarf im Zuge der einzelnen Bebauungsplanverfahren angepasst.
Leistung bgsm
Bebauungsplan – Koordination (2015-heute)
Auftraggeberin
Siemens Real Estate GmbH & Co OHG

