München
Machbarkeitsstudie / Wettbewerbsbetreuung / Bebauungsplan / Beratergremium
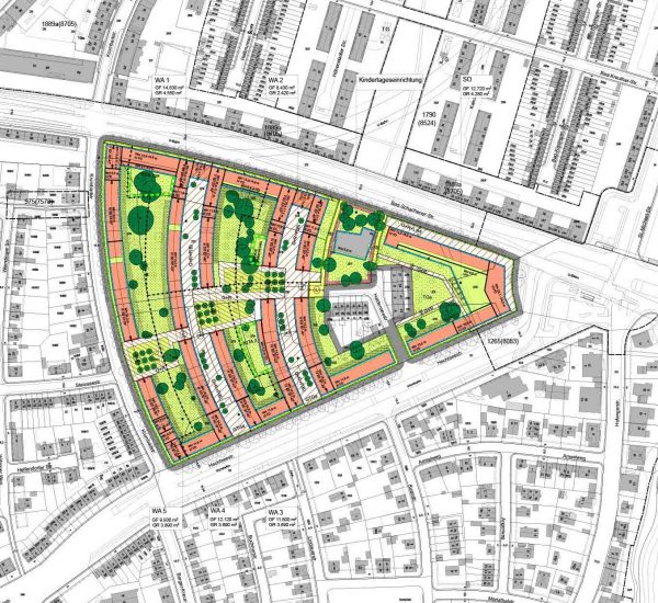
Eine Wohnsiedlung aus den 1950er Jahren soll modernisiert und nachverdichtet werden. Der derzeitige Baubestand soll in Schritten abgebrochen und durch zeitgemäße Wohngebäude ersetzt werden. In einer Machbarkeitsstudie wurden in typologisch unterschiedlichen Varianten die Eckdaten für ein städtebaulich verträgliches und wirtschaftlich tragfähiges Konzept ermittelt. Die Konzepte wurden in einer öffentlichen Bürgerveranstaltungen diskutiert.
Über einen städtebaulichen und landschaftsplanerischen Wettbewerb wurde die beste Planungsidee ermittelt; diese wurde dem Bebauungsplan zugrunde gelegt.
Um die hohen gestalterischen Ansprüche an den neuen Stadtteil zu sichern, wird ein Beratungsgremium eingerichtet, das der Abstimmung der einzelnen Bauvorhaben mit den stadtgestalterischen und grünordnerischen Zielen dienen soll. Die Aufgabe des Beratungsgremiums besteht darin, im Vorfeld der jeweiligen förmlichen Genehmigungsverfahren die Bauherrin sowie deren Planerinnen und Planer beratend zu begleiten und die vorgelegten Entwürfe hinsichtlich der gestalterischen Qualität auf der Grundlage der Festsetzungen des Bebauungsplanes und insbesondere der Vorgaben des Gestaltungsleitfadens für das Gebiet und im Zusammenhang mit anderen Projekten im Gebiet zu diskutieren.
Leistung bgsm
Machbarkeitsstudie (2013)
Wettbewerb (2015/2016)
Bauleitplanverfahren (2015/2019)
Beratergremium (seit 2022)
Auftraggeberin
GWG Städtische Wohnungsgesellschaft München mbH bzw. Münchner Wohnen GmbH (seit 2024)

