München Landkreis
Hohenbrunn West
Wettbewerbsbetreuung / Bebauungsplan / Beratergremium
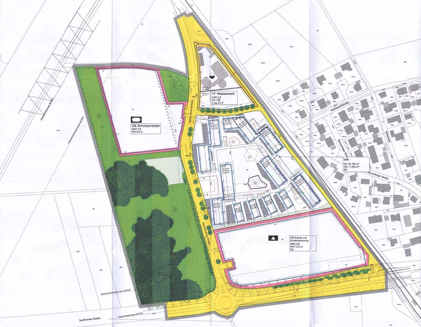
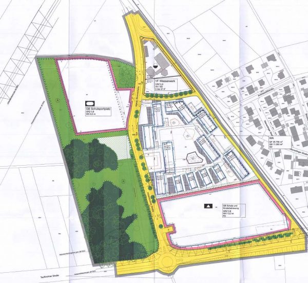
Aufgrund des Bedarfs eines zweiten Realschulstandorts für die Schulversorgung im Südosten des Landkreises München soll eine vierzügige Realschule mit zugehörigen Freisportflächen am westlichen Siedlungsrand des Ortes Hohenbrunn errichtet werden. Um die Schulentwicklung in den Ort zu integrieren, soll nördlich davon ein neues Wohngebiet anschließen und bildet mit dem bestehenden Wasserwerk im Norden des Planungsgebietes einen neuen Siedlungsrand aus.
Unser Büro erstellte den Bebauungsplan für das ca. 14 ha große Areal mit Gemeinbedarfsflächen für eine Realschule mit Freisportflächen, einem Wohngebiet mit ca. 250 Wohneinheiten und einer Versorgungsfläche Wasserwerk.
Das Entwurfskonzept für die Schule sieht eine kompakte in sich verzahnte quaderförmige Baustruktur mit bis zu 3 Geschossen mit nach Westen orientiertem Pausenhof vor (Entwurf: Köhler Architekten + beratende Ingenieure, Gauting mit Wankner und Fischer Landschaftsarchitketen und Stadtplaner, Eching). Demgegenüber vermittelt das Wohngebiet zwischen dem Sonderbaukörper und der Bestandsbebauung. Bis zu IV geschossigen Langgebäuden mit asymmetrischen Satteldächern bilden einen zentralen Freiraum in der Mitte des Quartiers aus (Entwurf: delaOssa Architekten, München mit Stautner + Schäf, Landschaftsarchitekten Stadtplaner, München). Westlich der Bauflächen jenseits der Hohenbrunner Straße werden die für den Natur- und Artenschutz wertvollen Sukzessionsflächen und Gehölzstrukturen sowie die notwendigen Freisportflächen der Schule entwickelt.
Die Bürgerschaft wurde eingeladen, sich an den Planungen im Zuge eines Bürgercafés zu beteiligen und die Ziele für die Flächen zu formulieren. Der Gemeinderat hat in mehreren Klausurtagungen am Planungsprozess maßgeblich mitgewirkt.
Unsere Aufgabe war es den Planungsprozess maßgeblich in den Prozessen zu begleiten und den inhaltlichen Diskurs mit der Bürgerschaft und dem Gemeinderat zu jedem Planungszeitpunkt zu gewährleisten.
Leistung bgsm
Änderung des Flächennutzungsplans
Bebauungsplan (2022 – 24)
Bürgerworkshop
Auftraggeberin
Gemeinde Hohenbrunn

